3階は現在募集がありません
1フロア募集区画あり

光澤堂GINZAビル 3階

前の写真 次の写真

物件概要

物件番号

634-00486-30

物件名

光澤堂GINZAビル

所在地

面積

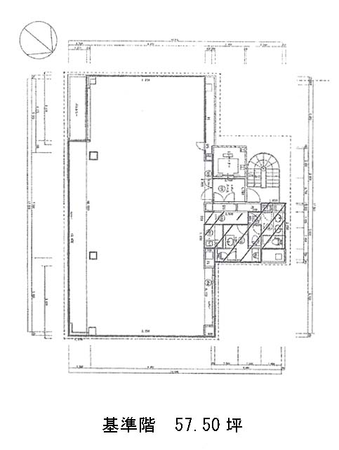
57.50坪

賃料(共益費含)


入居日

募集終了

保証金

礼金

更新料

償却費

竣工

1991年4月

構造

SRC

規模

地上8階/地下1階

トイレ

男女別

空調

個別空調

エレベーター

セキュリティ

駐車場

耐震

新耐震基準

基準階天井高

2450~2550mm

空室延床面積

37.61坪

最寄駅

情報更新日

2025/11/06

光澤堂GINZAビルのテナント募集中区画

階数 面積 賃料(共益費含む) 保証金 入居可能日 検討リスト 詳細
1 37.61坪 応相談(応相談) 応相談 2026年2月上旬
…新着物件

アクセス

光澤堂GINZAビルの物件情報

光澤堂GINZAビル(中央区銀座)は東銀座駅(6番出口)から徒歩2分の賃貸オフィスです。
晴海通りからすぐのところにある、地上8階・地下1階建てのビルです。前面道路は交通量がそれほど多くはない、落ち着いた環境です。2007年10月末に大規模なリニューアルをされています。晴海通りを渡るとすぐに歌舞伎座があり、和光や三越等が建ち並ぶ中央通りから徒歩圏内です。基準階は57.50坪の長方形で、床はフリーアクセス、トイレは室外に男女別であるので、レイアウトしやすい間取りです。
光澤堂GINZAビルは東銀座駅(6番出口)の他に銀座駅(A5番出口)徒歩5分、築地駅(2番出口)徒歩7分で利用も可能です。

近隣のエリア・駅から探す