2階は現在募集がありません
内田ビル 2階
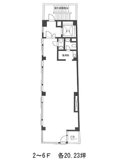
物件概要
内田ビルのテナント募集中区画
現在、空室がございません。
アクセス
内田ビルの物件情報
内田ビル(中央区新川)は八丁堀駅(B4番出口)から徒歩4分の賃貸オフィスです。内田ビルは八丁堀駅(B4番出口)の他に茅場町駅(1番出口)徒歩7分、宝町駅(A2番出口)徒歩13分で利用も可能です。

