3階は現在募集がありません

八丁堀スクエア 3階

前の写真 次の写真

物件概要

物件番号

637-00271-3

物件名

八丁堀スクエア

所在地

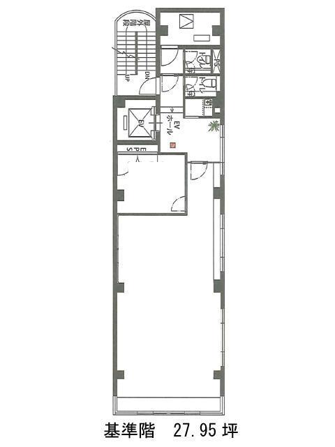
面積

27.95坪

賃料(共益費含)


入居日

募集終了

保証金

礼金

更新料

償却費

竣工

1991年3月

構造

S造

規模

地上7階

トイレ

男女別

空調

個別空調

エレベーター

セキュリティ

駐車場

耐震

新耐震基準

基準階天井高

空室延床面積

最寄駅

情報更新日

2025/11/04

八丁堀スクエアのテナント募集中区画

現在、空室がございません。

アクセス

八丁堀スクエアの物件情報

八丁堀スクエア(中央区新川)は八丁堀駅(B4番出口)から徒歩3分の賃貸オフィスです。
亀島川沿いの7階建てのビルです。ビルから隅田川の方向に、ドラマにたびたび登場する南高橋が見えます。2017年に大規模なリニューアル工事を行い、オシャレな内装になっています。基準階は27.95坪の長方形の間取りです。無柱空間とフリーアクセスの床で、すっきりとしたレイアウトが可能です。共用部分にもこだわりが見られ、屋上部分にはベンチとグリーンを配置し、憩いの場となっています。
八丁堀スクエアは八丁堀駅(B4番出口)の他に茅場町駅(1番出口)徒歩10分、宝町駅(A2番出口)徒歩12分で利用も可能です。

近隣のエリア・駅から探す