3階は現在募集がありません
新富町H・Jビル 3階
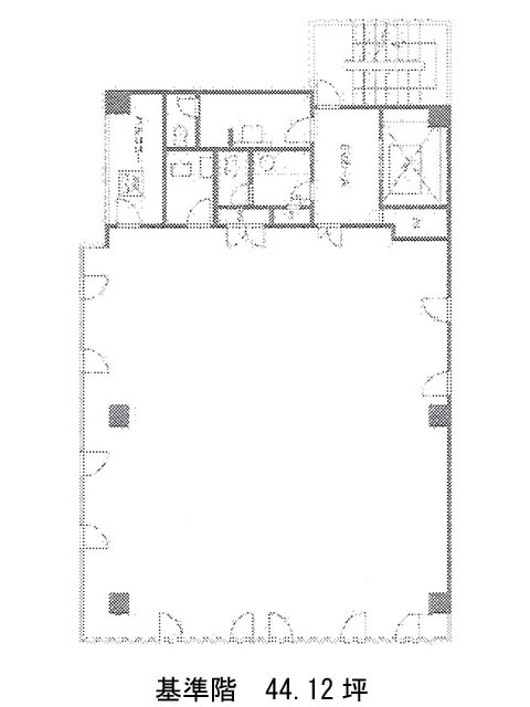
物件概要
新富町H・Jビルのテナント募集中区画
現在、空室がございません。
アクセス
新富町H・Jビルの物件情報
新富町H・Jビル(中央区新富)は八丁堀駅(A3番出口)から徒歩4分の賃貸オフィスです。中層物件が立ち並ぶエリアの地上7階地下1階ビルです。24時間利用可能なオフィスで、機械警備・EV1基・室外の男女別トイレ等の設備仕様です。空調は個別になっております。間取りは三面採光でバルコニーがあり、明るい室内が期待できます。前面道路は片側1車線ずつの道路で街路樹が植えられており、都心でありながらも落ち着いた雰囲気があります。近隣はこじんまりとした飲食店等がありランチにご利用頂けるでしょう。新富町H・Jビルは八丁堀駅(A3番出口)の他に新富町駅(3番出口)徒歩5分、宝町駅(A2番出口)徒歩6分で利用も可能です。

