東京内藤ビルのテナント募集中区画
| 階数 | 面積 | 賃料(共益費含む) | 保証金 | 入居可能日 | 検討リスト | 詳細 |
|---|---|---|---|---|---|---|
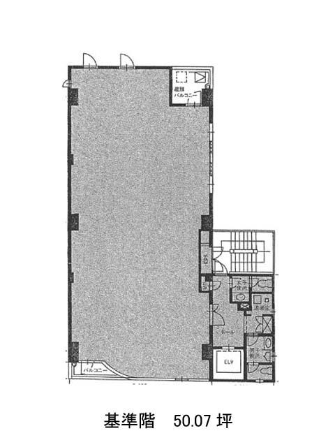
| 2 | 50.07坪 | 936,309円/月(18,700円/坪) | 595万円 | 即 | ||
| 3 | 50.07坪 | 936,309円/月(18,700円/坪) | 595万円 | 即 | ||
| 4 | 50.07坪 | 936,309円/月(18,700円/坪) | 595万円 | 即 | ||
| 5 | 50.07坪 | 936,309円/月(18,700円/坪) | 595万円 | 即 |
…新着物件
アクセス
東京内藤ビルの物件情報
東京内藤ビル(中央区新富)は新富町駅(3番出口)から徒歩4分の賃貸オフィスです。外観は、全体的にグレーを基調とした色合いで落ち着いた印象があります。基準階は約50坪あり、室内は長方形の形をしているので、レイアウトはしやすいでしょう。設備面は、男女別トイレ、各階個別空調、エレベーターは1基設置、セキュリティは機械警備システムを導入しています。また、機械式駐車場も併設されているため、社用車を使う場合も便利です。また周辺には、コンビニや飲食店などが複数あるので、とても利便性が高いです。東京内藤ビルは新富町駅(3番出口)の他に八丁堀駅(出口)徒歩5分、宝町駅(A2番出口)徒歩6分で利用も可能です。

