9階は現在募集がありません
東京内藤ビル 9階
物件概要
東京内藤ビルのテナント募集中区画
現在、空室がございません。
アクセス
東京内藤ビルの物件情報
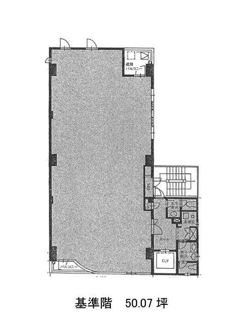
東京内藤ビル(中央区新富)は新富町駅(3番出口)から徒歩4分の賃貸オフィスです。外観は、全体的にグレーを基調とした色合いで落ち着いた印象があります。基準階は約50坪あり、室内は長方形の形をしているので、レイアウトはしやすいでしょう。設備面は、男女別トイレ、各階個別空調、エレベーターは1基設置、セキュリティは機械警備システムを導入しています。また、機械式駐車場も併設されているため、社用車を使う場合も便利です。また周辺には、コンビニや飲食店などが複数あるので、とても利便性が高いです。東京内藤ビルは新富町駅(3番出口)の他に八丁堀駅(出口)徒歩5分、宝町駅(A2番出口)徒歩6分で利用も可能です。

