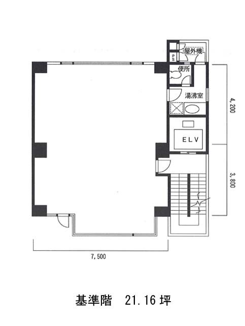
4階は現在募集がありません
アーベイン三井ビル 4階
物件概要
アーベイン三井ビルのテナント募集中区画
現在、空室がございません。
アクセス
アーベイン三井ビルの物件情報
アーベイン三井(中央区新富)は新富町駅(3番出口)から徒歩2分の賃貸オフィスです。アーベイン三井は新富町駅(3番出口)の他に築地駅(4番出口)徒歩5分、八丁堀駅(出口)徒歩7分で利用も可能です。

