ビーエム兜町ビル 6階 603新着
物件概要
物件番号
645-00023-160物件名
ビーエム兜町ビル所在地
- 東京都中央区日本橋兜町11-7
- アクセスマップ
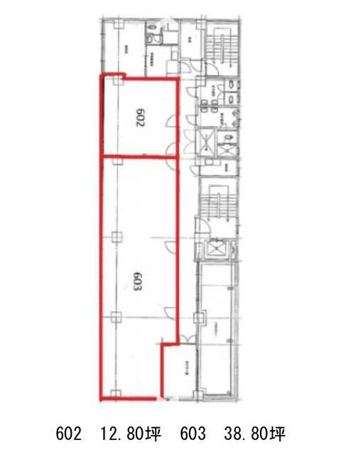
面積
38.80坪賃料(共益費含)
月額597,517円(15,400円/坪)
入居日
2026年2月保証金
3,414,400円礼金
なし更新料
なし償却費
なし竣工
1975年6月構造
RC規模
地上6階トイレ
不明空調
個別空調エレベーター
有セキュリティ
有駐車場
有耐震
旧耐震基準基準階天井高
空室延床面積
38.80坪情報更新日
2025/12/03ビーエム兜町ビルのテナント募集中区画
| 階数 | 面積 | 賃料(共益費含む) | 保証金 | 入居可能日 | 検討リスト | 詳細 |
|---|---|---|---|---|---|---|
| 6 | 38.80坪 | 597,517円/月(15,400円/坪) | 341万円 | 2026年2月 |
…新着物件
アクセス
ビーエム兜町ビルの物件情報
ビーエム兜町ビル(中央区日本橋兜町)は茅場町駅(12番出口)から徒歩3分の賃貸オフィスです。ビーエム兜町ビルは茅場町駅(12番出口)の他に日本橋駅(D1番出口)徒歩4分、八丁堀駅(A5番出口)徒歩9分で利用も可能です。

