2階は現在募集がありません
1フロア募集区画あり

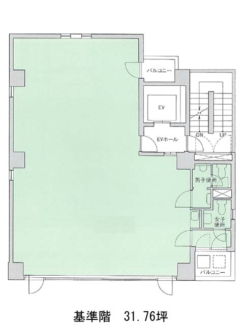
オーク入船ビル 2階

前の写真 次の写真

物件概要

物件番号

663-00035-20

物件名

オーク入船ビル

所在地

面積

31.76坪

賃料(共益費含)


入居日

募集終了

保証金

礼金

更新料

償却費

竣工

1992年8月

構造

規模

地上8階

トイレ

不明

空調

個別空調

エレベーター

セキュリティ

駐車場

耐震

新耐震基準

基準階天井高

2450mm

空室延床面積

31.97坪

最寄駅

情報更新日

2025/12/12

オーク入船ビルのテナント募集中区画

階数 面積 賃料(共益費含む) 保証金 入居可能日 検討リスト 詳細
3 31.97坪 527,505円/月(16,500円/坪) 575万円
…新着物件

アクセス

オーク入船ビルの物件情報

オーク入船ビル(中央区入船)は新富町駅(7番出口)から徒歩4分の賃貸オフィスです。
オーク入船ビルは新富町駅(7番出口)の他に八丁堀駅(出口)徒歩6分、築地駅(3番出口)徒歩8分で利用も可能です。

近隣のエリア・駅から探す