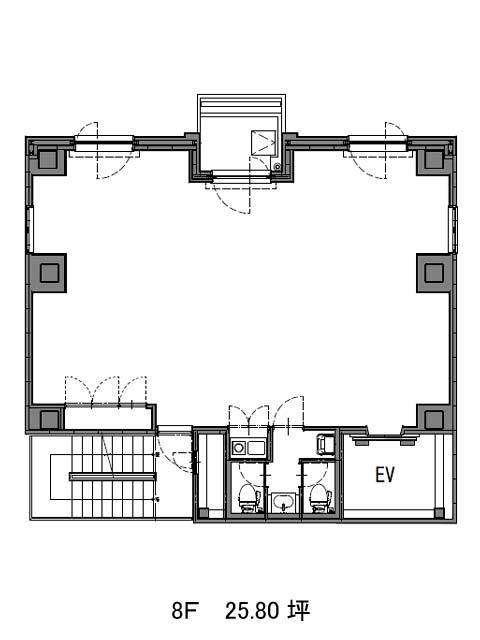
八丁堀鈴らん通りビルのテナント募集中区画
| 階数 | 面積 | 賃料(共益費含む) | 保証金 | 入居可能日 | 検討リスト | 詳細 |
|---|---|---|---|---|---|---|
| 5 | 32.90坪 | 応相談(応相談) | 応相談 | 2026年3月 |
…新着物件
アクセス
八丁堀鈴らん通りビルの物件情報
八丁堀鈴らん通りビル(中央区八丁堀)は八丁堀駅(A5番出口)から徒歩2分の賃貸オフィスです。八丁堀鈴らん通りビルは八丁堀駅(A5番出口)の他に茅場町駅(2番出口)徒歩5分、宝町駅(A8番出口)徒歩7分で利用も可能です。

