4階は現在募集がありません
安和宝町ビル 4階
物件概要
安和宝町ビルのテナント募集中区画
現在、空室がございません。
アクセス
安和宝町ビルの物件情報
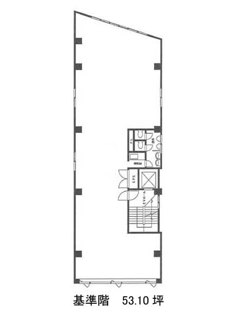
安和宝町ビル(中央区八丁堀)は宝町駅(A2番出口)から徒歩3分の賃貸オフィスです。1970年竣工の6階建ビルです。間取りは、建物の形状を活かした細長い形状で水回り等共用部が一箇所にまとめられています。EV1箇所・給湯室・男女別トイレ・個別空調があり機械警備が導入されています。2014年・2016年にリニューアルされ築年数を感じさせないスペックを備えております。エントランスまわりは温かみのある照明やデザイン性のある自動ドアでおもてなしの演出がされています。共用部は天然石を使用し、重厚感のある内装です。安和宝町ビルは宝町駅(A2番出口)の他に八丁堀駅(A3番出口)徒歩5分、京橋駅(4番出口)徒歩5分で利用も可能です。

