2階は現在募集がありません
永井ビル 2階
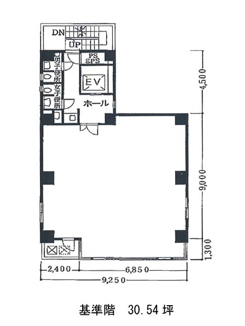
物件概要
永井ビルのテナント募集中区画
現在、空室がございません。
アクセス
永井ビルの物件情報
永井ビル(中央区八丁堀)は宝町駅(A8番出口)から徒歩3分の賃貸オフィスです。永井ビルは宝町駅(A8番出口)の他に八丁堀駅(A3番出口)徒歩6分、京橋駅(4番出口)徒歩6分で利用も可能です。

