6階は現在募集がありません
直平ビル 6階
物件概要
直平ビルのテナント募集中区画
現在、空室がございません。
アクセス
直平ビルの物件情報
直平ビル(中央区八丁堀)は八丁堀駅(A5番出口)から徒歩3分の賃貸オフィスです。外観はベージュの石造りで程よい柔らかみもあり、訪れた人に安心感を与えます。エントランスはコンパクトながら、天井が高く取られており、開放感ときちんと感を両立。
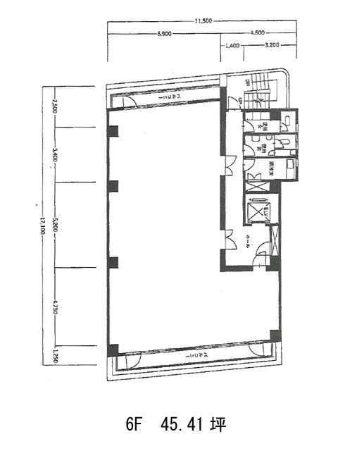
1フロア最大約50坪。約20坪程度の分割募集実績もあるため、必要に応じた選択が可能です。貸室内、柱は外周に配されており、レイアウトの自由度を保っています。
周辺にはコンビニや飲食店も多く、ランチやちょっとした買い物にも便利。日々の働きやすさをしっかり支えてくれる立地です。直平ビルは八丁堀駅(A5番出口)の他に宝町駅(A8番出口)徒歩6分、茅場町駅(2番出口)徒歩7分で利用も可能です。

