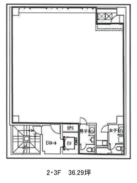
3階は現在募集がありません
スギコビル 3階
物件概要
スギコビルのテナント募集中区画
現在、空室がございません。
アクセス
スギコビルの物件情報
スギコビル(中央区八丁堀)は宝町駅(A8番出口)から徒歩3分の賃貸オフィスです。スギコビルは宝町駅(A8番出口)の他に八丁堀駅(A3番出口)徒歩5分、京橋駅(4番出口)徒歩6分で利用も可能です。

