6階は現在募集がありません
1フロア募集区画あり

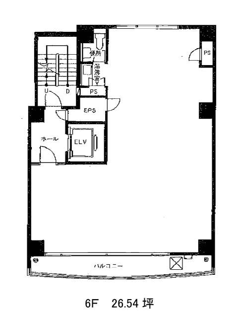
第2直平ビル 6階

前の写真 次の写真

物件概要

物件番号

665-00030-42

物件名

第2直平ビル

所在地

面積

26.54坪

賃料(共益費含)


入居日

募集終了

保証金

礼金

更新料

償却費

竣工

1989年11月

構造

SRC

規模

地上8階/地下1階

トイレ

男女共用

空調

個別空調

エレベーター

セキュリティ

駐車場

耐震

新耐震基準

基準階天井高

空室延床面積

28.31坪

最寄駅

情報更新日

2025/11/12

第2直平ビルのテナント募集中区画

階数 面積 賃料(共益費含む) 保証金 入居可能日 検討リスト 詳細
2 28.31坪 404,833円/月(14,300円/坪) 331万円 2026年1月中旬
…新着物件

アクセス

第2直平ビルの物件情報

第2直平ビル(中央区八丁堀)は八丁堀駅(A3番出口)から徒歩2分の賃貸オフィスです。
第2直平ビルは八丁堀駅(A3番出口)の他に宝町駅(A2番出口)徒歩6分、茅場町駅(2番出口)徒歩7分で利用も可能です。

近隣のエリア・駅から探す