3階は現在募集がありません
1フロア募集区画あり

UUR京橋イーストビル 3階

前の写真 次の写真

物件概要

物件番号

665-00360-3

物件名

UUR京橋イーストビル

所在地

面積

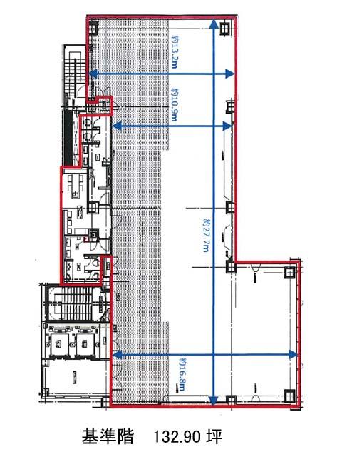
132.90坪

賃料(共益費含)


入居日

募集終了

保証金

礼金

更新料

償却費

竣工

2017年4月

構造

S造

規模

地上9階/地下1階

トイレ

男女別

空調

個別空調

エレベーター

セキュリティ

駐車場

耐震

新耐震基準

基準階天井高

2800mm

空室延床面積

132.90坪

最寄駅

情報更新日

2025/11/12

UUR京橋イーストビルのテナント募集中区画

階数 面積 賃料(共益費含む) 保証金 入居可能日 検討リスト 詳細
6 132.90坪 応相談(応相談) 応相談 2025年12月
…新着物件

アクセス

UUR京橋イーストビルの物件情報

UUR京橋イーストビル(中央区八丁堀)は宝町駅(A2番出口)から徒歩3分の賃貸オフィスです。
本物件は鍛冶橋通り沿いに位置し、前面に建物がないため視界がひらけた開放感のあるロケーション。ガラス張りの外観が街並みに映え、洗練された印象を与えます。
基準階は約133坪の整形・無柱空間で、レイアウト効率も良好。天井高は2,800mmとゆとりがあり、明るく広がりのある執務空間をつくりやすい設計です。1階にはコンビニエンスストアが入居しており、買い物やランチの調達など何かと便利。
設備面でも、エレベーター2基、OAフロア、機械警備、駐車場を備えており、日常的な使いやすさと安心感の両方をカバーしています。外観デザイン、機能性、利便性をバランスよく備えた一棟で、幅広い業種にフィットするポテンシャルを持っています。
UUR京橋イーストビルは宝町駅(A2番出口)の他に八丁堀駅(A3番出口)徒歩4分、京橋駅(4番出口)徒歩5分で利用も可能です。

近隣のエリア・駅から探す