4階 4Bは現在募集がありません
ニュー石橋ビル 4階 4B
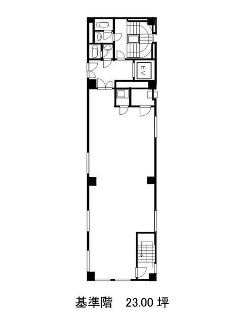
物件概要
ニュー石橋ビルのテナント募集中区画
現在、空室がございません。
アクセス
ニュー石橋ビルの物件情報
ニュー石橋ビル(中央区八丁堀)は八丁堀駅(B1番出口)から徒歩2分の賃貸オフィスです。
ニュー石橋ビルは八丁堀駅(B1番出口)の他に茅場町駅(1番出口)徒歩7分、宝町駅(A2番出口)徒歩7分で利用も可能です。

