新宿国際ビルディング本館 5階


物件概要
物件番号
237-00119-330物件名
新宿国際ビルディング本館所在地
- 東京都新宿区西新宿6-6-2
- アクセスマップ
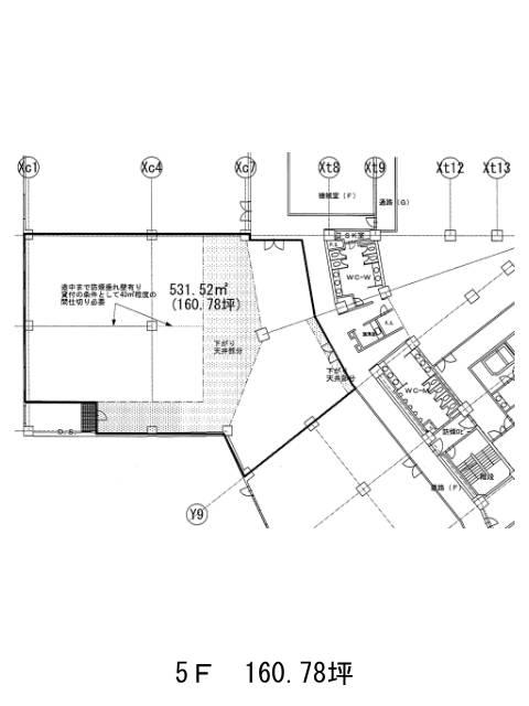
面積
160.78坪賃料(共益費含)
:応相談応相談
入居日
即保証金
応相談礼金
なし更新料
新1ケ月償却費
なし竣工
1984年8月構造
SRC規模
地上6階/地下4階トイレ
男女別空調
セントラルエレベーター
有セキュリティ
駐車場
無耐震
新耐震基準基準階天井高
空室延床面積
287.66坪情報更新日
2025/09/03新宿国際ビルディング本館のテナント募集中区画
階数 | 面積 | 賃料(共益費含む) | 保証金 | 入居可能日 | 検討リスト | 詳細 |
---|---|---|---|---|---|---|
5 | 126.88坪 | 応相談(応相談) | 応相談 | 2025年10月中旬 | ||
5 | 160.78坪 | 応相談(応相談) | 応相談 | 即 |
…新着物件
アクセス
新宿国際ビルディング本館の物件情報
新宿国際ビルディング本館(新宿区西新宿)は都庁前駅(E3番出口)から徒歩3分の賃貸オフィスです。
主要複数路線が利用可能な利便性の高い立地に佇む本物件。曲線を活かした外観デザインが特徴的で、落ち着いた雰囲気の石調エントランスが来訪者を迎えます。1フロア約690坪の大型オフィスビルで、区画によっては小規模面積からの分割にも対応可能。天井高2700mmの開放感ある空間に、セントラル空調・機械警備・駐車場といった設備も整っており、安心して長期利用できる環境です。交通利便性とビルスペックのバランスが取れた本物件は、業種を問わず検討しやすい一棟です。
新宿国際ビルディング本館は都庁前駅(E3番出口)の他に西新宿駅(E3番出口)徒歩3分、新宿駅(A17番出口)徒歩9分で利用も可能です。