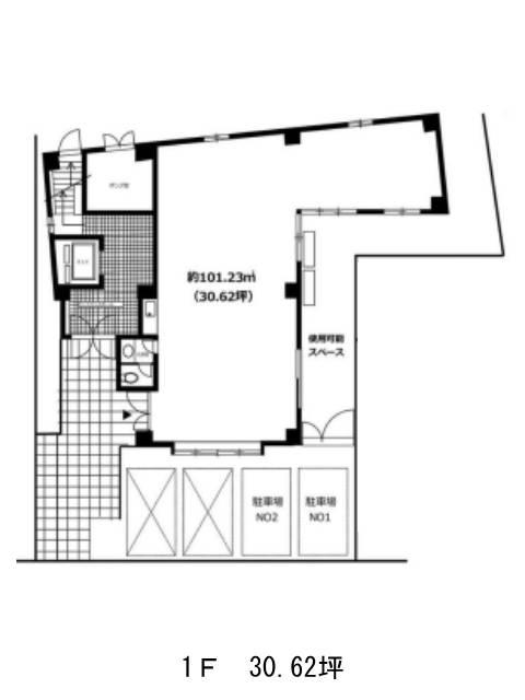
1階は現在募集がありません
ブールデリエール外苑 1階
物件概要
ブールデリエール外苑のテナント募集中区画
現在、空室がございません。
アクセス
ブールデリエール外苑の物件情報
ブールデリエール外苑(渋谷区千駄ヶ谷)は北参道駅(2番出口)から徒歩3分の賃貸オフィスです。ブールデリエール外苑は北参道駅(2番出口)の他に国立競技場駅(A4番出口)徒歩9分、代々木駅(西口)徒歩10分で利用も可能です。

