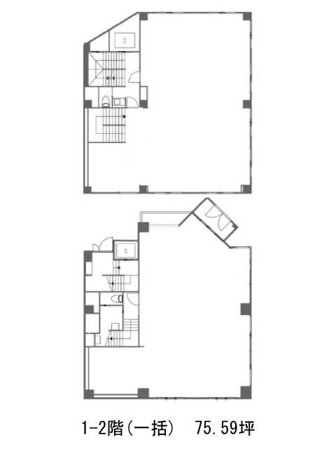
1-2は現在募集がありません
金子ビル 1-2
物件概要
金子ビルのテナント募集中区画
現在、空室がございません。
アクセス
金子ビルの物件情報
金子ビル(渋谷区千駄ヶ谷)は北参道駅(1番出口)から徒歩5分の賃貸オフィスです。金子ビルは北参道駅(1番出口)の他に国立競技場駅(A4番出口)徒歩7分、千駄ヶ谷駅(出口)徒歩7分で利用も可能です。

