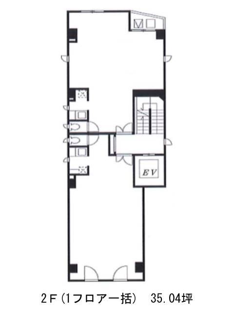
2階は現在募集がありません
エフワン北参道ビル 2階
物件概要
エフワン北参道ビルのテナント募集中区画
現在、空室がございません。
アクセス
エフワン北参道ビルの物件情報
エフワン北参道ビル(渋谷区千駄ヶ谷)は北参道駅(1番出口)から徒歩4分の賃貸オフィスです。エフワン北参道ビルは北参道駅(1番出口)の他に千駄ヶ谷駅(出口)徒歩8分、国立競技場駅(A4番出口)徒歩8分で利用も可能です。

