8階は現在募集がありません
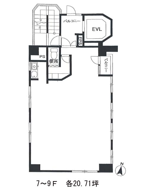
YU-WAビル 8階
物件概要
YU-WAビルのテナント募集中区画
現在、空室がございません。
アクセス
YU-WAビルの物件情報
YU-WAビル(渋谷区代々木)は新宿駅(8番出口)から徒歩1分の賃貸オフィスです。YU-WAビルは新宿駅(8番出口)の他に南新宿駅(出口)徒歩8分、新宿三丁目駅(E10番出口)徒歩8分で利用も可能です。

