8階は現在募集がありません
東京南新宿ビルディング 8階
物件概要
東京南新宿ビルディングのテナント募集中区画
現在、空室がございません。
アクセス
東京南新宿ビルディングの物件情報
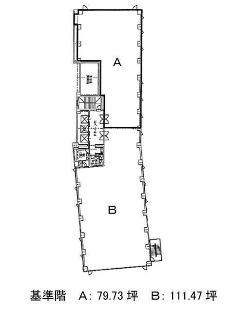
東京南新宿ビルディング(渋谷区代々木)は新宿駅(2番出口)から徒歩2分の賃貸オフィスです。1987年竣工、甲州街道から少し入った通り沿いに建つ地上8階建てです。外観はグレーの石調で、しっかりとした重厚感が感じられます。フロア全体は奥行きのある無柱空間で、一部に共用部のまとまったコの字型に近い形です。ビル前面は幅広い通りですので、窓からの採光や眺望にも優れています。当物件にはエレベーターが3基設置されていますので、混み合う時間も待ち時間が少ないでしょう。その他の設備としてセントラル空調や男女別トイレを備え、セキュリティは有人管理を採用しています。また新耐震基準を満たしていますので構造面も安心です。あらゆる店舗や施設が揃うエリアですので利便性は抜群の立地といえます。東京南新宿ビルディングは新宿駅(2番出口)の他に新宿三丁目駅(E10番出口)徒歩5分、新宿西口駅(出口1)徒歩7分で利用も可能です。

