2階 276は現在募集がありません
ニューステイトメナー 2階 276
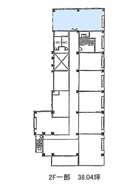
物件概要
ニューステイトメナーのテナント募集中区画
現在、空室がございません。
アクセス
ニューステイトメナーの物件情報
ニューステイトメナー(渋谷区代々木)は新宿駅(A1番出口)から徒歩3分の賃貸オフィスです。1976年竣工の鉄骨鉄筋コンクリート造。オフィスとマンション、2つの建物が並ぶこちらの物件はレンガ調の重厚感ある外観で、印象的なアーチ状の通路は奥の駐車場へと抜けています。主な設備としてエレベーター、個別空調、OAフロア、男女別トイレを備えています。また貸室の広さや間取りは区画によって異なります。周辺はオフィス街で、落ち着いた環境です。ビル内に小型スーパーや飲食店が入居している他、向かいのビルのレストラン街が昼食に便利です。また郵便局からも近いため、事務作業も効率的に進められそうです。ニューステイトメナーは新宿駅(A1番出口)の他に南新宿駅(出口)徒歩5分、代々木駅(A3番出口)徒歩6分で利用も可能です。

