10階は現在募集がありません

小田急サザンタワー 10階

前の写真 次の写真

物件概要

物件番号

177-00031-202

物件名

小田急サザンタワー

所在地

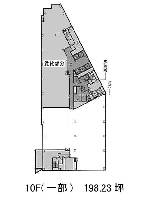
面積

198.23坪

賃料(共益費含)


入居日

募集終了

保証金

礼金

更新料

償却費

竣工

1998年3月

構造

規模

地上36階/地下4階

トイレ

男女別

空調

セントラル

エレベーター

セキュリティ

駐車場

耐震

新耐震基準

基準階天井高

2600mm

空室延床面積

最寄駅

情報更新日

2024/07/03

小田急サザンタワーのテナント募集中区画

現在、空室がございません。

アクセス

小田急サザンタワーの物件情報

小田急サザンタワー(渋谷区代々木)は新宿駅(A1番出口)から徒歩3分の賃貸オフィスです。
1998年竣工、地上36階、基準階面積は約465坪です。吹き抜け・ガラス張りのエントランスホールは白い石張りで統一され、明るい雰囲気が好印象です。下層階には複数の飲食店が入居しています。貸室はやや特徴的な形で、奥行きのある無柱空間となっていますので、執務スペースを分けたい場合にもレイアウトがしやすいでしょう。廊下や水回り等の共用部は2011年と2012年にリニューアルを行っており、清潔に管理されています。設備面はエレベータ7基、個別空調、OAフロア、男女別トイレを備え、地震や強風にも強い設計で安全性にも優れています。また当物件が立地するサザンテラス内には様々な飲食店が営業し、タイムズスクエアやマインズタワーへも直結していますので、大変利便性が高いでしょう。 
小田急サザンタワーは新宿駅(A1番出口)の他に代々木駅(北口)徒歩5分、新宿三丁目駅(E8番出口)徒歩6分で利用も可能です。

近隣のエリア・駅から探す