3階 301は現在募集がありません
植木ビル 3階 301
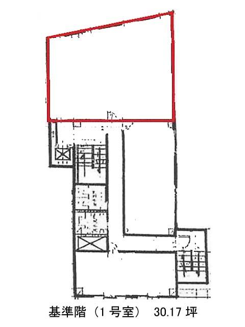
物件概要
植木ビルのテナント募集中区画
現在、空室がございません。
アクセス
植木ビルの物件情報
植木ビル(新宿区歌舞伎町)は西武新宿駅(北口)から徒歩4分の賃貸オフィスです。1976年の竣工ですが、淡いベージュの外観や白を基調としたエントランスの内装は清潔感があり綺麗に保たれています。地上10階建てで、エレベーターは1基設置です。ワンフロアの大きさは約65坪で、貸室内の窓は大きなサイズとなっていて、各窓からは太陽光が良く入ってきますセキュリティは機械式警備を採用しています。1階には飲食店が入っています。徒歩圏内にはコンビニエンスストアや郵便局がございますので、不便はなさそうです。植木ビルは西武新宿駅(北口)の他に東新宿駅(A1番出口)徒歩7分、大久保駅(南口)徒歩7分で利用も可能です。

