7階は現在募集がありません
HANROKUビル 7階
物件概要
HANROKUビルのテナント募集中区画
現在、空室がございません。
アクセス
HANROKUビルの物件情報
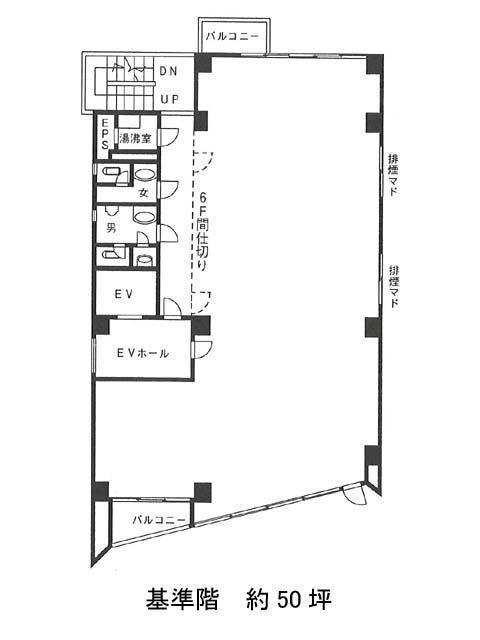
HANROKUビル(新宿区歌舞伎町)は新宿三丁目駅(E1番出口)から徒歩3分の賃貸オフィスです。1988年竣工ですが、新耐震基準に適合している建物なので安心してご入居頂けます。白を基調とした外観は清潔感を感じさせ、内装も綺麗に保たれています。また室内は長方形に近い貸室ですので、レイアウトを組みやすく、タイルカーペットを採用しているので、足音などの騒音対策を気にしなくて済みます。セキュリティは機械式警備となってます。1階には飲食店がテナントとして入っており、徒歩圏内にはコンビニエンスストアやカフェ、郵便局もございます。HANROKUビルは新宿三丁目駅(E1番出口)の他に東新宿駅(A1番出口)徒歩6分、新宿駅(B12番出口)徒歩8分で利用も可能です。

