3階は現在募集がありません

HANROKUビル 3階

前の写真 次の写真

物件概要

物件番号

192-00012-122

物件名

HANROKUビル

所在地

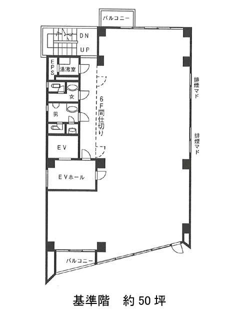
面積

49.70坪

賃料(共益費含)


入居日

募集終了

保証金

礼金

更新料

償却費

竣工

1989年1月

構造

SRC

規模

地上9階/地下1階

トイレ

男女別

空調

個別空調

エレベーター

セキュリティ

駐車場

耐震

新耐震基準

基準階天井高

空室延床面積

最寄駅

情報更新日

2022/08/30

HANROKUビルのテナント募集中区画

現在、空室がございません。

アクセス

HANROKUビルの物件情報

HANROKUビル(新宿区歌舞伎町)は新宿三丁目駅(E1番出口)から徒歩3分の賃貸オフィスです。
1988年竣工ですが、新耐震基準に適合している建物なので安心してご入居頂けます。白を基調とした外観は清潔感を感じさせ、内装も綺麗に保たれています。また室内は長方形に近い貸室ですので、レイアウトを組みやすく、タイルカーペットを採用しているので、足音などの騒音対策を気にしなくて済みます。セキュリティは機械式警備となってます。1階には飲食店がテナントとして入っており、徒歩圏内にはコンビニエンスストアやカフェ、郵便局もございます。
HANROKUビルは新宿三丁目駅(E1番出口)の他に東新宿駅(A1番出口)徒歩6分、新宿駅(B12番出口)徒歩8分で利用も可能です。

近隣のエリア・駅から探す