B1-1は現在募集がありません
新宿CENTER COURT B1-1
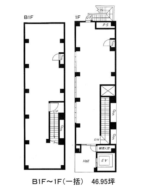
物件概要
新宿CENTER COURTのテナント募集中区画
現在、空室がございません。
アクセス
新宿CENTER COURTの物件情報
新宿CENTER COURT(新宿区歌舞伎町)は新宿駅(B12番出口)から徒歩3分の賃貸オフィスです。新宿CENTER COURTは新宿駅(B12番出口)の他に新宿三丁目駅(B10番出口)徒歩3分、新宿西口駅(出口1)徒歩5分で利用も可能です。

