5階 ABは現在募集がありません
KM新宿ビル 5階 AB
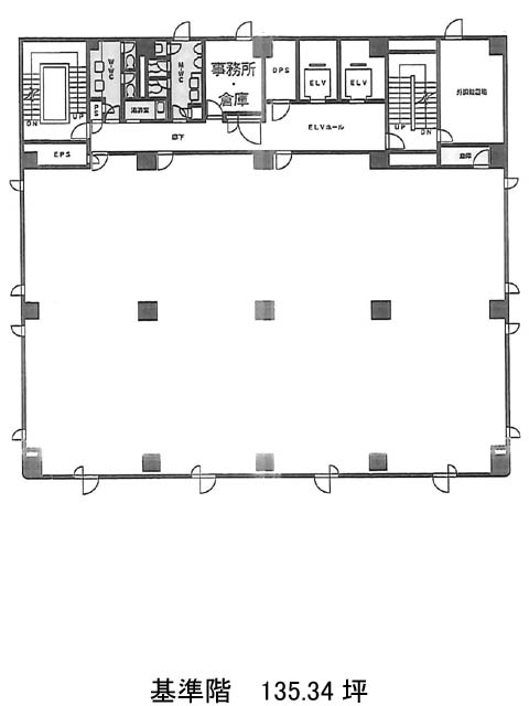
物件概要
KM新宿ビル のテナント募集中区画
現在、空室がございません。
アクセス
KM新宿ビル の物件情報
KM新宿ビル (新宿区歌舞伎町)は西武新宿駅(北口)から徒歩2分の賃貸オフィスです。KM新宿ビル は西武新宿駅(北口)の他に大久保駅(南口)徒歩6分、新大久保駅(出口)徒歩8分で利用も可能です。

