Uni-works新宿御苑 1階
物件概要
物件番号
230-00371-10物件名
Uni-works新宿御苑所在地
- 東京都新宿区新宿1-12-5
- アクセスマップ
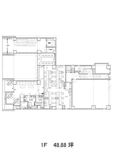
面積
48.88坪賃料(共益費含)
月額1,505,504円(30,800円/坪)
入居日
2026年4月保証金
10,949,120円礼金
なし更新料
なし償却費
なし竣工
1985年4月構造
SRC規模
地上6階/地下2階トイレ
男女別空調
エレベーター
有セキュリティ
駐車場
有耐震
新耐震基準基準階天井高
空室延床面積
200.72坪情報更新日
2025/11/14Uni-works新宿御苑のテナント募集中区画
| 階数 | 面積 | 賃料(共益費含む) | 保証金 | 入居可能日 | 検討リスト | 詳細 |
|---|---|---|---|---|---|---|
| 1 | 48.88坪 | 1,505,504円/月(30,800円/坪) | 1,094万円 | 2026年4月 | ||
| 2 | 87.92坪 | 2,417,800円/月(27,500円/坪) | 1,758万円 | 2026年4月 | ||
| 4 | 63.92坪 | 1,968,736円/月(30,800円/坪) | 1,431万円 | 2026年5月上旬 |
…新着物件
アクセス
Uni-works新宿御苑の物件情報
Uni-works新宿御苑(新宿区新宿)は新宿御苑前駅(2番出口)から徒歩2分の賃貸オフィスです。1985年竣工、新耐震基準に適合しているビルです。地上6階地下2階建、SRC造をしています。外観は黒い壁面に大きなガラス窓でスタイリッシュな印象をしています。共用部は黒とグレーを基調としたおしゃれな内装をしています。2021年に外観・エントランスのリニューアルがされ、築年数を感じさせない清潔感があります。設備仕様としてEV1基・駐車場・個別空調・OAフロア・男女別トイレが備わっています。周辺はオフィス街で落ち着いた雰囲気のあるエリアとなっております。Uni-works新宿御苑は新宿御苑前駅(2番出口)の他に新宿三丁目駅(C5番出口)徒歩8分、四谷三丁目駅(2番出口)徒歩10分で利用も可能です。

