5-6は現在募集がありません
3フロア募集区画あり

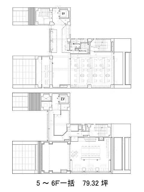
Uni-works新宿御苑 5-6

前の写真 次の写真

物件概要

物件番号

230-00371-15

物件名

Uni-works新宿御苑

所在地

面積

79.32坪

賃料(共益費含)


入居日

募集終了

保証金

礼金

更新料

償却費

竣工

1985年4月

構造

SRC

規模

地上6階/地下2階

トイレ

男女別

空調

エレベーター

セキュリティ

駐車場

耐震

新耐震基準

基準階天井高

空室延床面積

200.72坪

最寄駅

情報更新日

2025/11/14

Uni-works新宿御苑のテナント募集中区画

階数 面積 賃料(共益費含む) 保証金 入居可能日 検討リスト 詳細
1 48.88坪 1,505,504円/月(30,800円/坪) 1,094万円 2026年4月
2 87.92坪 2,417,800円/月(27,500円/坪) 1,758万円 2026年4月
4 63.92坪 1,968,736円/月(30,800円/坪) 1,431万円 2026年5月上旬
…新着物件

アクセス

Uni-works新宿御苑の物件情報

Uni-works新宿御苑(新宿区新宿)は新宿御苑前駅(2番出口)から徒歩2分の賃貸オフィスです。
1985年竣工、新耐震基準に適合しているビルです。地上6階地下2階建、SRC造をしています。外観は黒い壁面に大きなガラス窓でスタイリッシュな印象をしています。共用部は黒とグレーを基調としたおしゃれな内装をしています。2021年に外観・エントランスのリニューアルがされ、築年数を感じさせない清潔感があります。設備仕様としてEV1基・駐車場・個別空調・OAフロア・男女別トイレが備わっています。周辺はオフィス街で落ち着いた雰囲気のあるエリアとなっております。
Uni-works新宿御苑は新宿御苑前駅(2番出口)の他に新宿三丁目駅(C5番出口)徒歩8分、四谷三丁目駅(2番出口)徒歩10分で利用も可能です。

近隣のエリア・駅から探す