10階は現在募集がありません

新四curumuビル 10階

前の写真 次の写真

物件概要

物件番号

230-00597-210

物件名

新四curumuビル

所在地

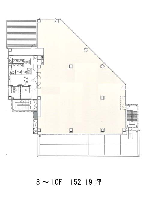
面積

152.19坪

賃料(共益費含)


入居日

募集終了

保証金

礼金

更新料

償却費

竣工

2012年1月

構造

S造

規模

地上11階/地下2階

トイレ

男女別

空調

個別空調

エレベーター

セキュリティ

駐車場

耐震

新耐震基準

基準階天井高

2700mm

空室延床面積

最寄駅

情報更新日

2023/05/12

新四curumuビルのテナント募集中区画

現在、空室がございません。

アクセス

新四curumuビルの物件情報

新四curumuビル(新宿区新宿)は新宿三丁目駅(E6番出口)から徒歩1分の賃貸オフィスです。
2012年竣工、地上11階地下2階建ての鉄骨造です。外観はガラス張りでかなり存在感があるため視認性に優れています。築年数も浅いため外観、内観ともに清潔感があり明るい雰囲気です。主な設備面としてはOAフロア、男女トイレ別、個別空調、駐車場完備に加えエレベーターは4基設置されているため移動のストレスもありません。室内は無柱空間ではありませんが基準階面積が約197坪とかなり広く開放感があるため、充分にレイアウトを楽しんでいただけます。
新四curumuビルは新宿三丁目駅(E6番出口)の他に新宿駅(ミライナタワー改札)徒歩4分、新宿西口駅(出口1)徒歩5分で利用も可能です。

近隣のエリア・駅から探す