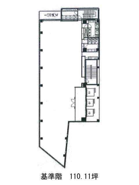
3階は現在募集がありません
第1スカイビル 3階
物件概要
第1スカイビルのテナント募集中区画
現在、空室がございません。
アクセス
第1スカイビルの物件情報
第1スカイビル(新宿区新宿)は新宿三丁目駅(E7番出口)から徒歩1分の賃貸オフィスです。第1スカイビルは新宿三丁目駅(E7番出口)の他に新宿駅(新南改札)徒歩5分、新宿西口駅(出口)徒歩6分で利用も可能です。

