長田屋ビルのテナント募集中区画
| 階数 | 面積 | 賃料(共益費含む) | 保証金 | 入居可能日 | 検討リスト | 詳細 |
|---|---|---|---|---|---|---|
| 7 | 34.05坪 | 524,368円/月(15,400円/坪) | 239万円 | 2026年1月中旬 |
…新着物件
アクセス
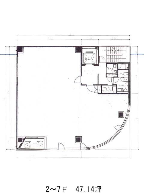
長田屋ビルの物件情報
長田屋ビル(新宿区新宿)は新宿御苑前駅(2番出口)から徒歩7分の賃貸オフィスです。1993年竣工、地上8階地下1階建てです。外観は白で統一されており丸みを帯びた設計なので清潔感と存在感にあふれています。比較的交通量の多い場所にあるため視認性も高いといえるでしょう。主な設備面としてはOAフロア、男女別トイレ、個別空調、エレベーター1基、駐車場が完備です。室内の窓がとても大きいため日当たりもよく、開放感のある明るい造りになっています。また無柱空間のためレイアウトがしやすいのも嬉しい点です。長田屋ビルは新宿御苑前駅(2番出口)の他に四谷三丁目駅(2番出口)徒歩10分、新宿三丁目駅(C7番出口)徒歩11分で利用も可能です。

