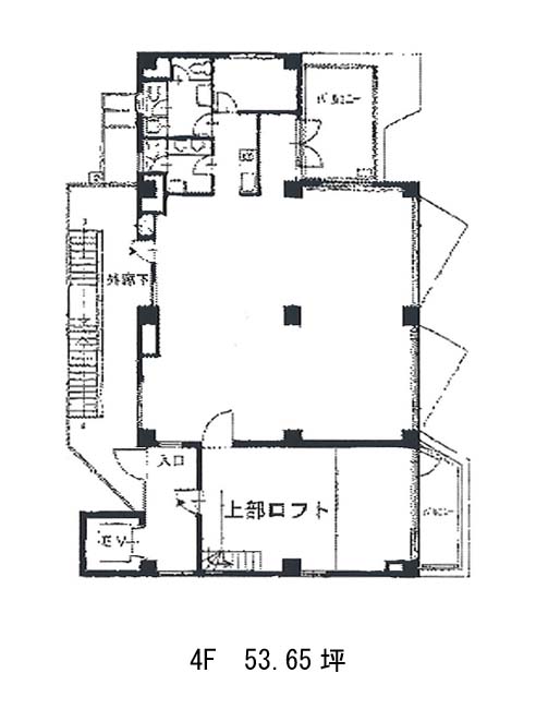
4階は現在募集がありません
カーメルⅡ 4階
物件概要
カーメルⅡのテナント募集中区画
現在、空室がございません。
アクセス
カーメルⅡの物件情報
カーメルⅡ(新宿区西新宿)は西新宿駅(1番出口)から徒歩5分の賃貸オフィスです。1991年竣工。ビルのフォルムがとても特徴的でデザイン性の高い外観となっています。基準階フロアは約80坪。貸室内は採光良好、明るいです。フリーアクセスの床を採用していますので配線はスッキリとさせることができます。個別空調、機械式警備、光ファイバー導入済みです。女性用のトイレ内には小物入れが設置されており便利です。リフレッシュスペースが設けられておりますので、社員の皆様がホッとできる休憩スペースとしてご利用するのはいかがでしょうか。カーメルⅡは西新宿駅(1番出口)の他に大久保駅(南口)徒歩8分、都庁前駅(E3番出口)徒歩9分で利用も可能です。

