3階は現在募集がありません

カーメルⅡ 3階

前の写真 次の写真

物件概要

物件番号

237-00372-72

物件名

カーメルⅡ

所在地

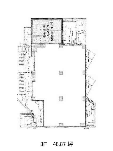
面積

48.87坪

賃料(共益費含)


入居日

募集終了

保証金

礼金

更新料

償却費

竣工

1991年11月

構造

RC

規模

地上6階

トイレ

男女別

空調

個別空調

エレベーター

セキュリティ

駐車場

耐震

新耐震基準

基準階天井高

2500mm

空室延床面積

最寄駅

情報更新日

2025/12/01

カーメルⅡのテナント募集中区画

現在、空室がございません。

アクセス

カーメルⅡの物件情報

カーメルⅡ(新宿区西新宿)は西新宿駅(1番出口)から徒歩5分の賃貸オフィスです。
1991年竣工。ビルのフォルムがとても特徴的でデザイン性の高い外観となっています。基準階フロアは約80坪。貸室内は採光良好、明るいです。フリーアクセスの床を採用していますので配線はスッキリとさせることができます。個別空調、機械式警備、光ファイバー導入済みです。女性用のトイレ内には小物入れが設置されており便利です。リフレッシュスペースが設けられておりますので、社員の皆様がホッとできる休憩スペースとしてご利用するのはいかがでしょうか。
カーメルⅡは西新宿駅(1番出口)の他に大久保駅(南口)徒歩8分、都庁前駅(E3番出口)徒歩9分で利用も可能です。

近隣のエリア・駅から探す