2階は現在募集がありません
アドバンスビル 2階
物件概要
アドバンスビルのテナント募集中区画
現在、空室がございません。
アクセス
アドバンスビルの物件情報
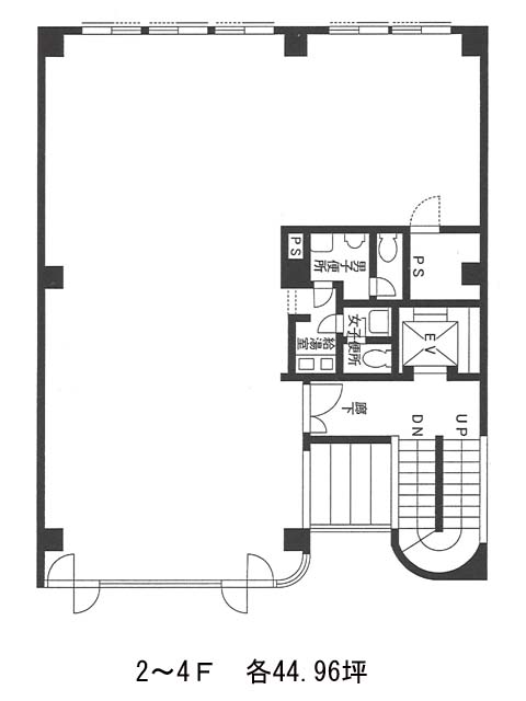
アドバンスビル(新宿区西新宿)は西新宿駅(1番出口)から徒歩3分の賃貸オフィスです。1994年竣工の地上4階建てビルです。ブラックとグレーを基調とした2色使いの重厚感のある外観となっています。エントランスホールはタイルと石張りで仕上げており、綺麗に保たれていてビルメンテナンスが行き届いています。基準階フロアは約45坪、貸室内はL字型になっていますが整形されているのでデスク等の配置はしやすいです。個別空調、機械式警備を完備。また清潔感のあるトイレは男女別となっております。付近にはコンビニエンスストアやカフェが営業されており、何かと便利なエリアに位置しています。アドバンスビルは西新宿駅(1番出口)の他に新宿駅(A18番出口)徒歩6分、都庁前駅(E3番出口)徒歩7分で利用も可能です。

