4階は現在募集がありません
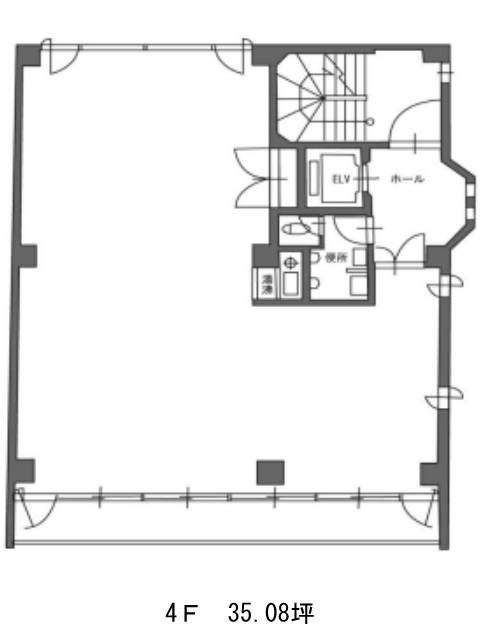
及川ビル 4階
物件概要
及川ビルのテナント募集中区画
現在、空室がございません。
アクセス
及川ビルの物件情報
及川ビル(新宿区百人町)は新大久保駅(出口)から徒歩2分の賃貸オフィスです。及川ビルは新大久保駅(出口)の他に大久保駅(北口)徒歩5分、西武新宿駅(北口)徒歩9分で利用も可能です。

