パレロワイヤル永田町 7階 706
物件概要
物件番号
378-00003-116物件名
パレロワイヤル永田町所在地
- 東京都千代田区永田町2-9-8
- アクセスマップ
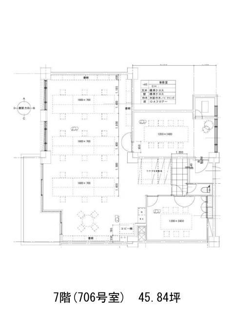
面積
45.84坪賃料(共益費含)
月額907,632円(19,800円/坪)
入居日
即保証金
4,950,720円礼金
1ケ月更新料
新1ケ月償却費
2ケ月竣工
1977年10月構造
SRC規模
地上11階トイレ
男女共用空調
個別空調エレベーター
有セキュリティ
駐車場
有耐震
耐震補強済み基準階天井高
2600mm空室延床面積
45.84坪情報更新日
2025/11/21パレロワイヤル永田町のテナント募集中区画
| 階数 | 面積 | 賃料(共益費含む) | 保証金 | 入居可能日 | 検討リスト | 詳細 |
|---|---|---|---|---|---|---|
| 7 | 45.84坪 | 907,632円/月(19,800円/坪) | 495万円 | 即 |
…新着物件
アクセス
パレロワイヤル永田町の物件情報
パレロワイヤル永田町(千代田区永田町)は溜池山王駅(5番出口)から徒歩4分の賃貸オフィスです。高級感のあるエントランスとレッドブラウンのレンガ造りの外壁が上品で永田町の街のイメージにぴったり合った物件です。こちらはマンションタイプの物件ですので、SOHO向けと言えます。24時間警備によりセキュリィ面も安心です。少し歩いた先に日枝神社がありますので、街全体に背筋がすっと伸びるような空気が満ちており、落ち着いた環境のもと、仕事のインスピレーションが湧きやすいかもしれません。
溜池山王駅のほかに国会議事堂前駅へも徒歩4分でアクセスが可能です。パレロワイヤル永田町は溜池山王駅(5番出口)の他に国会議事堂前駅(5番出口)徒歩4分、赤坂見附駅(11番出口)徒歩7分で利用も可能です。

