5階は現在募集がありません
第一恒産ビル 5階
物件概要
第一恒産ビルのテナント募集中区画
現在、空室がございません。
アクセス
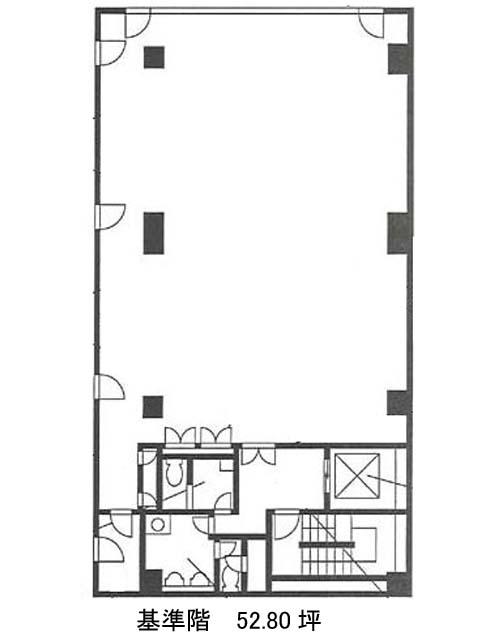
第一恒産ビルの物件情報
第一恒産ビル(中央区銀座)は東銀座駅(A7番出口)から徒歩3分の賃貸オフィスです。1973年竣工、2004年には内装・外装ともにフルリニューアルしています。外観は全体的に白を基調としており、ガラス張りになっているため、とても綺麗な印象があります。ビル内にはOAフロアが備えられており、男女トイレは別となっております。駐車場はありませんが、近くにパーキングがあるため、社用車を使う場合も便利です。また周辺には、コンビニや飲食店などが複数あるためとても利便性が高いです。第一恒産ビルは東銀座駅(A7番出口)の他に新富町駅(1番出口)徒歩5分、築地駅(2番出口)徒歩5分で利用も可能です。

