第一恒産ビル 6階
物件概要
物件番号
634-00898-20物件名
第一恒産ビル所在地
- 東京都中央区銀座3-14-10
- アクセスマップ
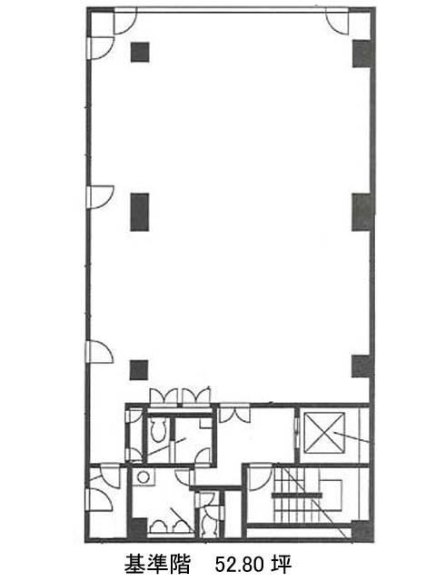
面積
52.80坪賃料(共益費含)
:応相談応相談
入居日
2026年3月上旬保証金
応相談礼金
なし更新料
なし償却費
なし竣工
1973年5月構造
SRC規模
地上 8階/地下 1階トイレ
男女別空調
個別空調エレベーター
有セキュリティ
有駐車場
無耐震
旧耐震基準基準階天井高
2450mm空室延床面積
52.80坪情報更新日
2026/01/19第一恒産ビルのテナント募集中区画
| 階数 | 面積 | 賃料(共益費含む) | 保証金 | 入居可能日 | 検討リスト | 詳細 |
|---|---|---|---|---|---|---|
| 6 | 52.80坪 | 応相談(応相談) | 応相談 | 2026年3月上旬 |
…新着物件
アクセス
第一恒産ビルの物件情報
第一恒産ビル(中央区銀座)は東銀座駅(A7番出口)から徒歩3分の賃貸オフィスです。1973年竣工、2004年には内装・外装ともにフルリニューアルしています。外観は全体的に白を基調としており、ガラス張りになっているため、とても綺麗な印象があります。ビル内にはOAフロアが備えられており、男女トイレは別となっております。駐車場はありませんが、近くにパーキングがあるため、社用車を使う場合も便利です。また周辺には、コンビニや飲食店などが複数あるためとても利便性が高いです。第一恒産ビルは東銀座駅(A7番出口)の他に新富町駅(1番出口)徒歩5分、築地駅(2番出口)徒歩5分で利用も可能です。

