アルファ新富ビル 5階
物件概要
物件番号
638-00047-40物件名
アルファ新富ビル所在地
- 東京都中央区新富1-15-4
- アクセスマップ
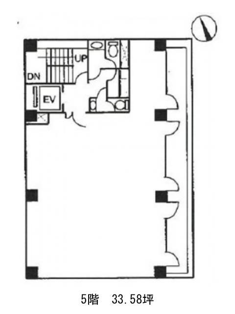
面積
33.58坪賃料(共益費含)
月額561,001円(16,706円/坪)
入居日
相談保証金
1,640,047円礼金
なし更新料
新1ケ月償却費
20%竣工
1990年6月構造
RC規模
地上7階/地下1階トイレ
男女別空調
個別空調エレベーター
有セキュリティ
有駐車場
無耐震
新耐震基準基準階天井高
2300mm空室延床面積
33.58坪情報更新日
2025/12/05アルファ新富ビルのテナント募集中区画
| 階数 | 面積 | 賃料(共益費含む) | 保証金 | 入居可能日 | 検討リスト | 詳細 |
|---|---|---|---|---|---|---|
| 5 | 33.58坪 | 561,001円/月(16,706円/坪) | 164万円 | 相談 |
…新着物件
アクセス
アルファ新富ビルの物件情報
アルファ新富ビル(中央区新富)は八丁堀駅(出口)から徒歩3分の賃貸オフィスです。新大橋通りを一本西へ入ったところにある、7階建てのビルです。通りを挟んで向かいに東京三菱UFJ銀行の新富町支店があります。基準階は39.44坪の長方形の間取りで、床はフリーアクセスになっています。通りに面した壁がガラス張りになっているので、採光の豊かさが期待できます。室外に男女別トイレと給湯設備が設置されています。歩いてすぐのところに、りそな銀行のATM、少し歩くとヤマト運輸の窓口や郵便局もある、便利な環境です。アルファ新富ビルは八丁堀駅(出口)の他に新富町駅(5番出口)徒歩5分、築地駅(4番出口)徒歩7分で利用も可能です。

