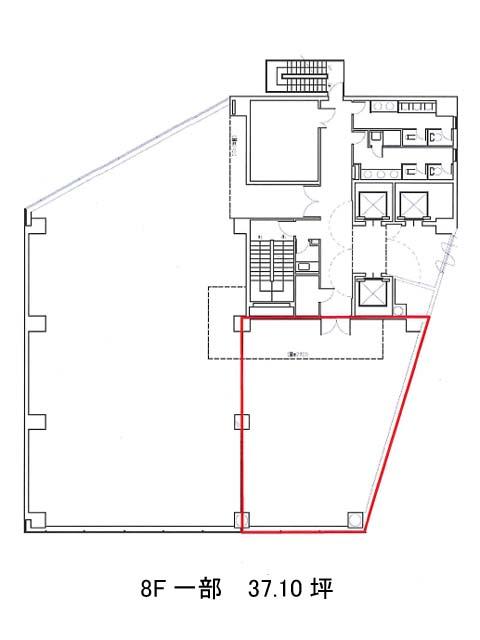
8階は現在募集がありません
東陽プラザビル 8階
物件概要
東陽プラザビルのテナント募集中区画
現在、空室がございません。
東陽プラザビルのアクセス
東陽プラザビルの物件情報
東陽プラザビル(江東区東陽)は東陽町駅(1番出口)から徒歩3分の賃貸オフィスです。ビル上層部がガラス張りの特徴的な外観であり、永代通りに面しているため非常に視認性に優れています。1992年竣工、地上10階・地下1階の鉄筋コンクリート造で、新耐震基準を満たしています。近隣にコンビニ、郵便局、銀行、複数の飲食店があり、利便性が非常に高いエリアとなっています。主な設備はOAフロア、セントラル空調、男女別トイレ、機械式駐車場があり、エレベーターは2基設置されています。機械警備が導入されており、安心してお仕事をすることができます。基準階は約145坪で、貸室内に柱はありますが区画に分けて考えればレイアウトは考えやすいです。東陽プラザビルは東陽町駅(1番出口)の他に木場駅(1番出口)徒歩8分で利用も可能です。

