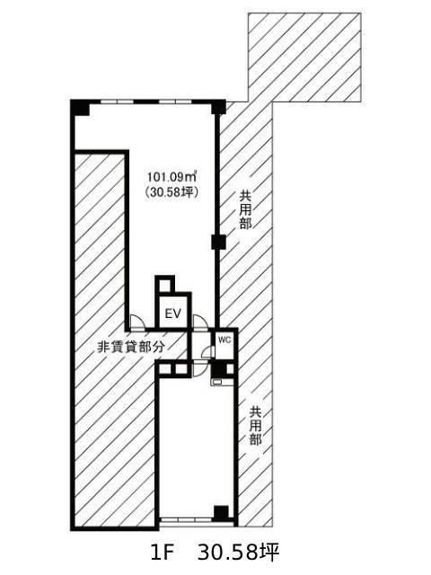
田辺ローヤルコーポ 1階
物件概要
田辺ローヤルコーポのテナント募集中区画
| 階数 | 面積 | 賃料(共益費含む) | 保証金 | 入居可能日 | 検討リスト | 詳細 |
|---|---|---|---|---|---|---|
| 1 | 30.58坪 | 506,000円/月(16,547円/坪) | 276万円 | 即 |
…新着物件
アクセス
田辺ローヤルコーポの物件情報
田辺ローヤルコーポ(江東区富岡)は門前仲町駅(1番出口)から徒歩6分の賃貸オフィスです。田辺ローヤルコーポは門前仲町駅(1番出口)の他に木場駅(4a番出口)徒歩9分、越中島駅(出口3)徒歩15分で利用も可能です。

