鈴与浜松町ビル 8階
物件概要
物件番号
119-00064-54物件名
鈴与浜松町ビル所在地
- 東京都港区海岸2-1-16
- アクセスマップ
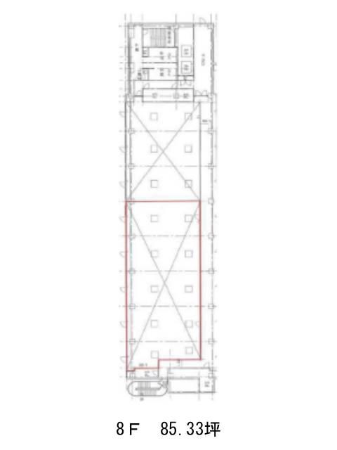
面積
85.33坪賃料(共益費含)
:応相談応相談
入居日
2026年3月上旬保証金
応相談礼金
なし更新料
なし償却費
2ケ月竣工
1992年8月構造
SRC規模
地上11階/地下2階トイレ
男女別空調
個別空調エレベーター
有セキュリティ
有駐車場
有耐震
新耐震基準基準階天井高
空室延床面積
85.33坪情報更新日
2025/10/15鈴与浜松町ビルのテナント募集中区画
| 階数 | 面積 | 賃料(共益費含む) | 保証金 | 入居可能日 | 検討リスト | 詳細 |
|---|---|---|---|---|---|---|
| 8 | 85.33坪 | 応相談(応相談) | 応相談 | 2026年3月上旬 |
…新着物件
アクセス
鈴与浜松町ビルの物件情報
鈴与浜松町ビル(港区海岸)は日の出駅(東口)から徒歩5分の賃貸オフィスです。シンプルな白い外壁と窓の配置が、階層ごとに変化するデザインがお洒落な外観です。ビル内には個別空調が完備されており、トイレは男女別となっております。エレベーターは2基設置されており、駐車場も完備してあるため、車の利用もしやすい環境となっております。セキュリティは機械警備と有人警備の両方を導入していて、耐震性も新耐震基準であるため、安心です。また周辺にはコンビニや飲食店、郵便局などが複数あるため、利便性が高いエリアです。鈴与浜松町ビルは日の出駅(東口)の他に竹芝駅(西口)徒歩7分、浜松町駅(南口1)徒歩10分で利用も可能です。

