岩尾ビルのテナント募集中区画
| 階数 | 面積 | 賃料(共益費含む) | 保証金 | 入居可能日 | 検討リスト | 詳細 |
|---|---|---|---|---|---|---|
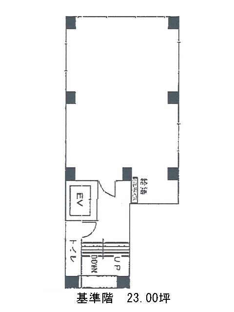
| 4 | 23.00坪 | 399,300円/月(17,361円/坪) | 198万円 | 相談 | ||
| 5 | 23.00坪 | 399,300円/月(17,361円/坪) | 198万円 | 相談 | ||
| 7 | 23.00坪 | 399,300円/月(17,361円/坪) | 198万円 | 即 |
…新着物件
アクセス
岩尾ビルの物件情報
岩尾ビル(港区虎ノ門)は虎ノ門ヒルズ駅(B4番出口)から徒歩2分の賃貸オフィスです。岩尾ビルは虎ノ門ヒルズ駅(B4番出口)の他に虎ノ門駅(2a番出口)徒歩3分、霞ケ関駅(A12番出口)徒歩7分で利用も可能です。

