6階は現在募集がありません
虎ノ門ファーストガーデン 6階
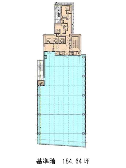
物件概要
虎ノ門ファーストガーデンのテナント募集中区画
現在、空室がございません。
虎ノ門ファーストガーデンのアクセス
虎ノ門ファーストガーデンの物件情報
虎ノ門ファーストガーデン(港区虎ノ門)は虎ノ門駅(4番出口)から徒歩1分の賃貸オフィスです。2010年竣工、地上12階建ての物件ということもあり、上層階からの眺望はとても良好です。ガラス張りの外観がとても美しくスタイリッシュな印象です。エントランスやエレベーターホールは広々としており、清潔感があり来訪者にも好印象でしょう。一階には郵便局があり、周辺にはコンビニや飲食店、銀行などが複数あるためオフィス環境としての利便性が高いエリアです。設備面は個別空調、OAフロア、男女別トイレ、機械式駐車場を完備しています。虎ノ門ファーストガーデンは虎ノ門駅(4番出口)の他に虎ノ門ヒルズ駅(B4番出口)徒歩4分、霞ケ関駅(A12番出口)徒歩5分で利用も可能です。

