10階は現在募集がありません
明産高浜ビル 10階
物件概要
明産高浜ビルのテナント募集中区画
現在、空室がございません。
明産高浜ビルのアクセス
明産高浜ビルの物件情報
明産高浜ビル(港区港南)は品川駅(港南口)から徒歩10分の賃貸オフィスです。旧海岸通り沿いに佇む本物件は、石造りの堅牢な外観が信頼感を演出します。
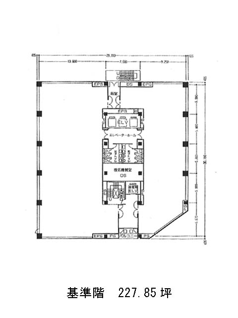
1フロア約230坪の広さを誇りながら、100坪前後での分割対応も可能な柔軟性を備えています。エントランスからエレベーターホールにかけては天井高もあり、ゆったりとした印象。テーブルと椅子が設けられており、来客時の簡易ミーティングにも活用できる環境です。最寄駅からはやや距離があるものの、その分落ち着いた業務空間を確保できるのもポイント。利便性と静けさのバランスを重視する企業様におすすめの一棟です。明産高浜ビルは品川駅(港南口)の他に北品川駅(出口)徒歩11分、天王洲アイル駅(中央口)徒歩11分で利用も可能です。

