3階は現在募集がありません
石橋ビル 3階
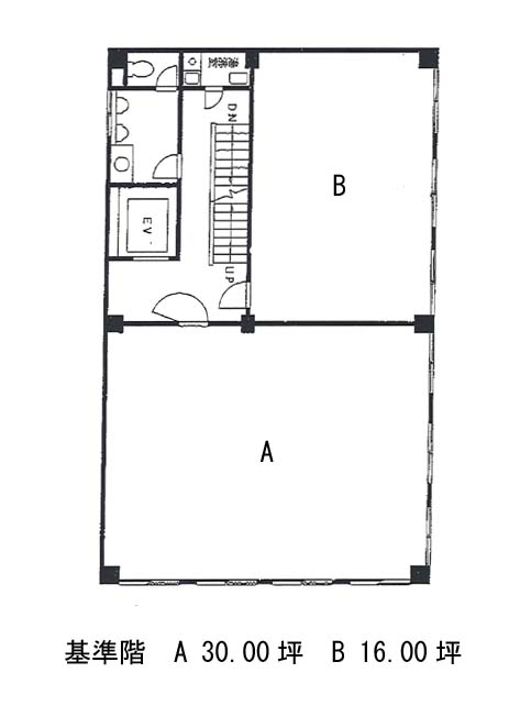
物件概要
石橋ビルのテナント募集中区画
現在、空室がございません。
石橋ビルのアクセス
石橋ビルの物件情報
石橋ビル(港区港南)は品川駅(港南口)から徒歩5分の賃貸オフィスです。石橋ビルは品川駅(港南口)の他に天王洲アイル駅(中央口)徒歩15分で利用も可能です。

